BF(VSSJA-1)型单法兰限位伸缩接头
BF(VSSJA-1)型单法兰限位伸缩接头
【产品别名】: 单法兰伸缩接头 单法兰限位伸缩器
【产品规格】:【DN50mm-DN4000mm】
【产品认证】:ISO9001-2008
【产品压力】:0.25--2.5
【执行标准】:GB/T12465-2007
【连接方式】:法兰和焊接
【适用范围】:【弱酸、弱碱、弱腐蚀类、油、热水、冷水等】
【产品材质】:碳钢,不锈钢.
【产品颜色】:蓝色 l绿色 可根据客户要求调色.
【工作温度】:-40度至160度
“与您相遇,绝非偶然”,非常感谢您能在互联网浩瀚的信息中点击进入“亚丰”官方网站,如果能为您提供【BF(VSSJA-1)型单法兰限位伸缩接头 】方面的技术服务,将是亚丰人的荣幸!接下来您将看到的是亚丰BF(VSSJA-1)型单法兰限位伸缩接头 技术为您准备的BF(VSSJA-1)型单法兰限位伸缩接头 的技术信息,希望对您的选择能有帮助!
BF(VSSJA-1)型单法兰限位伸缩接头介绍
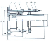
BF(VSSJA-1)单法兰限位伸缩接头是由松套伸缩接头和一个限位短管组合而成。单法兰松套限位伸缩接头使用于一边与法兰连接,一边与管道焊接,安装时调整产品两端与管道或法兰的安装长度,对角均匀拧紧压盖螺栓,再调整好限位螺母,这样就能让管道在伸缩量范围内可以自由伸缩,锁定伸缩量,管道的*运行。

BF(VSSJA-1)型单法兰限位伸缩接头生产现场
BF(VSSJA-1)型单法兰限位伸缩接头优势
BF(VSSJA-1)单法兰限位伸缩接头能够实现管道轴向位移的补偿,并且能够大大减少管道运行时的轴向推力,从而延长管道的使用寿命,保护线路的*运行。单法兰松套限位伸缩接头能防止管道因超量位移导致补偿接头的泄漏或损坏,主要用于在允许位移范围内吸收轴向位移和缓解轴向压力推力的管道松套连接,实现了管道一边法兰连接,一边为焊接的不一致性的方便连接。并且安装在管道线路上能够方便阀门的拆装与维护,并且能够克服地陷对管道线路造成的不良影响。BF(VSSJA-1)单法兰限位伸缩接头适用于输送海水、淡水、冷热水、饮用水、生活污水、原油、燃油、润滑油、成品油、空气、煤气、温度不高于250度的蒸汽和颗粒粉状等介质。

BF(VSSJA-1)型单法兰限位伸缩接头实拍
BF(VSSJA-1)型单法兰限位伸缩接头技术参数
![]() |
||||||||||||||||||||||||||||||||||||||||||||||||||||||||||||||||||||||||||||||||||||||||||||||||||||||||||||||||||||||||||||||||||||||||||||||||||||||||||||||||||||||||||||||||||||||||||||||||||||||||||||||||||||||||||||||||||||||||||||||||||||||||||||||||||||||||||||||||||
|
||||||||||||||||||||||||||||||||||||||||||||||||||||||||||||||||||||||||||||||||||||||||||||||||||||||||||||||||||||||||||||||||||||||||||||||||||||||||||||||||||||||||||||||||||||||||||||||||||||||||||||||||||||||||||||||||||||||||||||||||||||||||||||||||||||||||||||||||||
BF(VSSJA-1)型单法兰限位伸缩接头服务
售前服务:
产品介绍,技术交流,特殊产品设计,疑难解答。
售中服务:
1、守信合同,保证及时供货,随时保持与客户联系
2、对特殊或复杂的产品,我厂安排技术人员对用户进行产品使用、故障排除、调式及维修进行培训和指导。
售后服务:
1、亚丰产品质保期为自出厂起 12 个月,实行“三包”服务(包退、包换、包修)。
2、产品在使用中我厂定期组织技术、检查人员进行访问,征询用户对产品质量、使用状况、改进意见等方面的反馈,以便进一步提高产品质量。
3、对用户投诉产品质量问题,快速做出反映,售后服务人员在 24-36 小时(省外 48 小时)赶赴现场。
4、对售后服务,要求用户填写服务后的质量反馈表,并做出鉴定意见,共同提高亚丰的产品质量与服务质量。
订货须知
1、客户对产品有特殊要求,须在订货合同中提供以下说明:结构长度,连接形式,公称直径、全通径、缩径、管道尺寸,用介质及温度、压力范围,实验、检验标准及其他要求本厂可根据客户特殊要求配置定做和设计特殊产品。
2、本厂可根据客户特殊要求配置定做和设计特殊产品。
3、如由客户提供确定的产品类型和型号时,客户应正确说明其型号的含义和要求,在供需双方理解一致的条件下签订合同。

实实在在做产品,心无旁骛搞企业 !在制造业进入到智能化的今天,工匠精神并不过时,它的本质是自发专心致志地做事。河南亚丰管道设备制造有限公司多年来兢兢业业、心无旁骛,坚守在给水排水、污水处理厂、电力冶金、城建、石油化工、环保等行业供水管道领域,在BF(VSSJA-1)型单法兰限位伸缩接头 等产品上一点点打磨“匠师”级人才!不忘初心,未来可期!亚丰人愿与您携手共同实现伟大中国梦!
地址:河南省郑州市巩义市西村镇工业园区
服务热线:18237199974
手机:037188132050
邮箱:1216615621@qq.com








